Zum Hauptinhalt springen

Integratives Wohnen

Projekt

Neubau Mehrfamilienhaus

Leistung

LPH 3-5

Ausführungszeitraum

2024 - 2025

Beschreibung

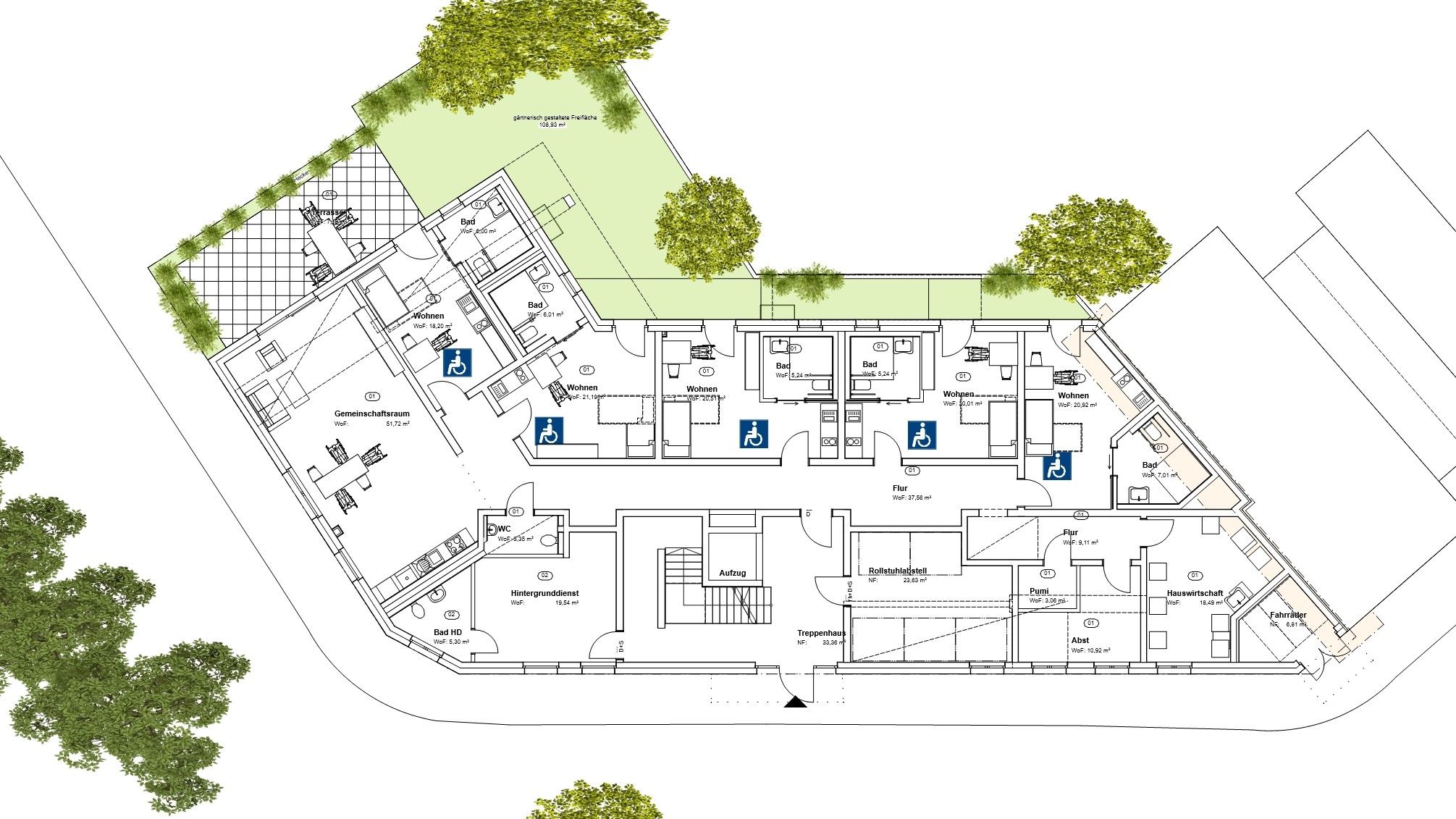
Mit diesem Neubauprojekt wird ein vielflältiges Wohnangebot in direkter Nähe zur Innenstadt gemacht. Es bietet neben Gruppenwohnen für Menschen mit Behinderung und vier vollständig rollstuhlgerechten Wohneinheiten auch Familien ein neues Zuhause.

Das Gebäude ist so konzipiert, dass es sich in eine bestehende Baulücke einfügt und dem Quartier ein Gesicht gibt. Trotz der begrenzten Grundstücksgröße bietet ein großzügiger Dachgarten den Bewohnern verschiedene Aufenthaltsmöglichkeiten im Freien. Dieser Garten dient sowohl zur Entspannung als auch zur Förderung des sozialen Miteinanders innerhalb der Hausgemeinschaft.

Dieses Projekt wird im Rahmen des öffentlich geförderten Wohnungsbaus realisiert und stellt somit bezahlbaren, barrierefreien Wohnraum zur Verfügung.

Der Baubeginn ist erfolgt.