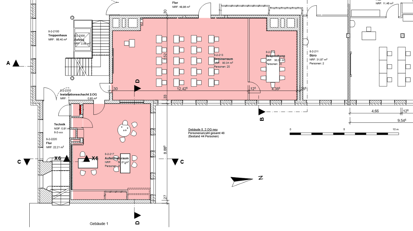
Baustelle Lernräume

Projekt
Umbau Gebäude 8 - 2.OG
Leistung
LPH 3-8
Ausführungszeitraum
2025
Beschreibung
An der Hochschule hat eine umfassende bauliche Maßnahme begonnen, die nicht nur das Erscheinungsbild, sondern auch die funktionale Nutzung der Räumlichkeiten zukünftig verändern wird. Ziel ist es, den Grundriss zeitgemäß neu zu organisieren und dabei die technische Gebäudeausstattung grundlegend zu sanieren.



