Wohnanlage Hasslinghauser Berg

Projekt
Wohnanlage Hasslinghauser Berg
Leistung
LPH 1-5, Entwicklung, Entwurf und Ausführungsplanung
Ausführungszeitraum
2016-2018
Beschreibung
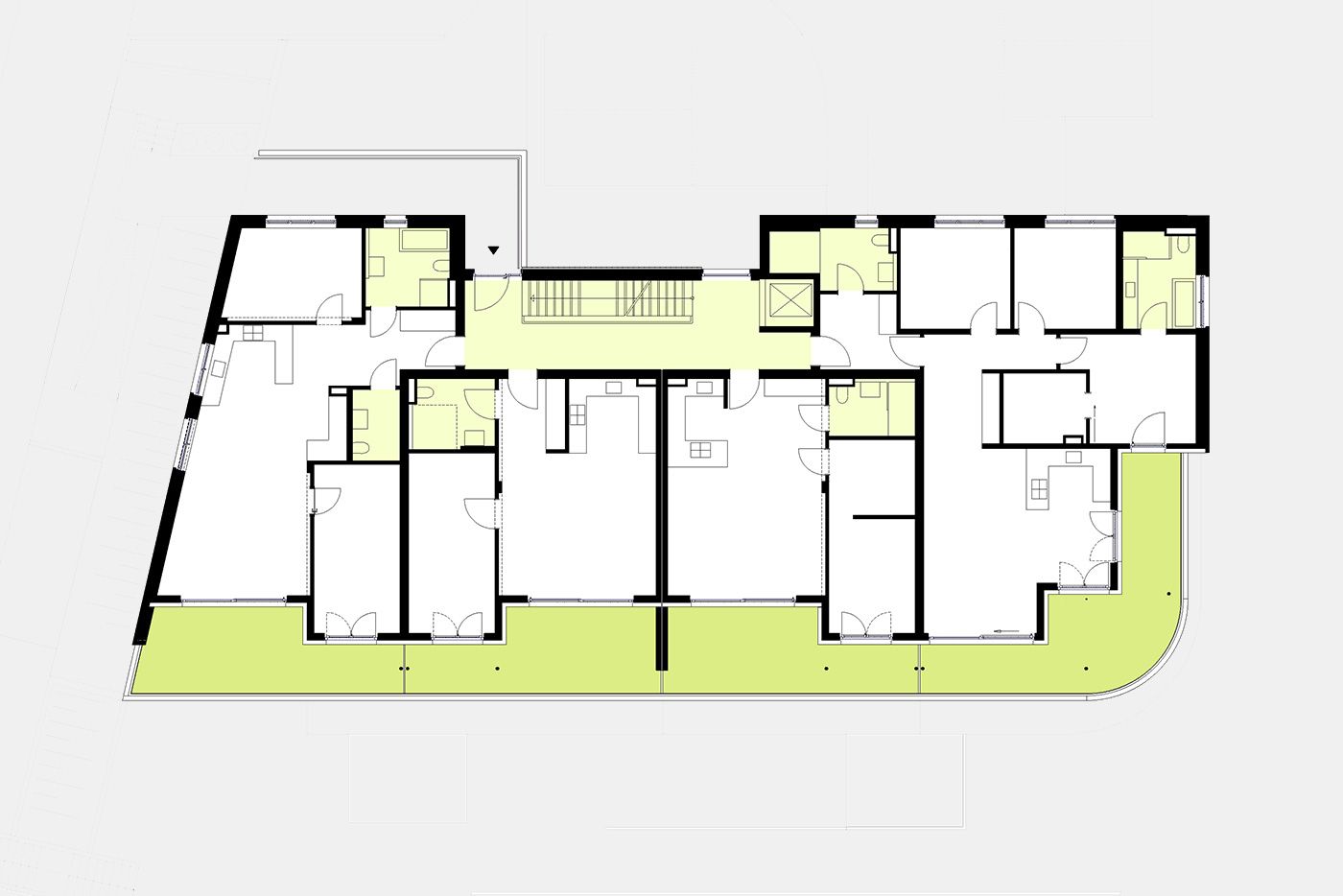
Ein Grundstück mit starker Hanglage wird mit 14 Wohneinheiten und einer Tiefgarage bebaut. Für das Konzept der Terrassenwohnungen war die außergewöhnliche Ausrichtung und der weite Blick ins Bergische Land Ausgangspunkt. Die großen Wohnungen verfügen alle über bis zu 40 m² große Terrassen, Aufzug und Tiefgaragen Stellplätze.


